Woonoppervlakte
Circa 125 m²
Perceeloppervlakte
Circa 183 m²
Bouwjaar
Gebouwd in 1997
Aantal kamers
5 kamers (4 slaapkamers)

Emsdettenplein 2

7559 WD, Hengelo (Overijssel)

Wonen aan het Emsdettenplein 2: comfortabel, energiezuinig en met alles binnen handbereik!

Welkom in de gewilde wijk Slangenbeek in Hengelo!
Aan het Emsdettenplein 2 vind je deze ruime hoekwoning met een woonoppervlakte van circa 125 m² en een royale externe berging van 22 m². Een woning die modern comfort combineert met een rustige, kindvriendelijke ligging én uitstekende voorzieningen op loopafstand.

Licht, ruimte en comfort.
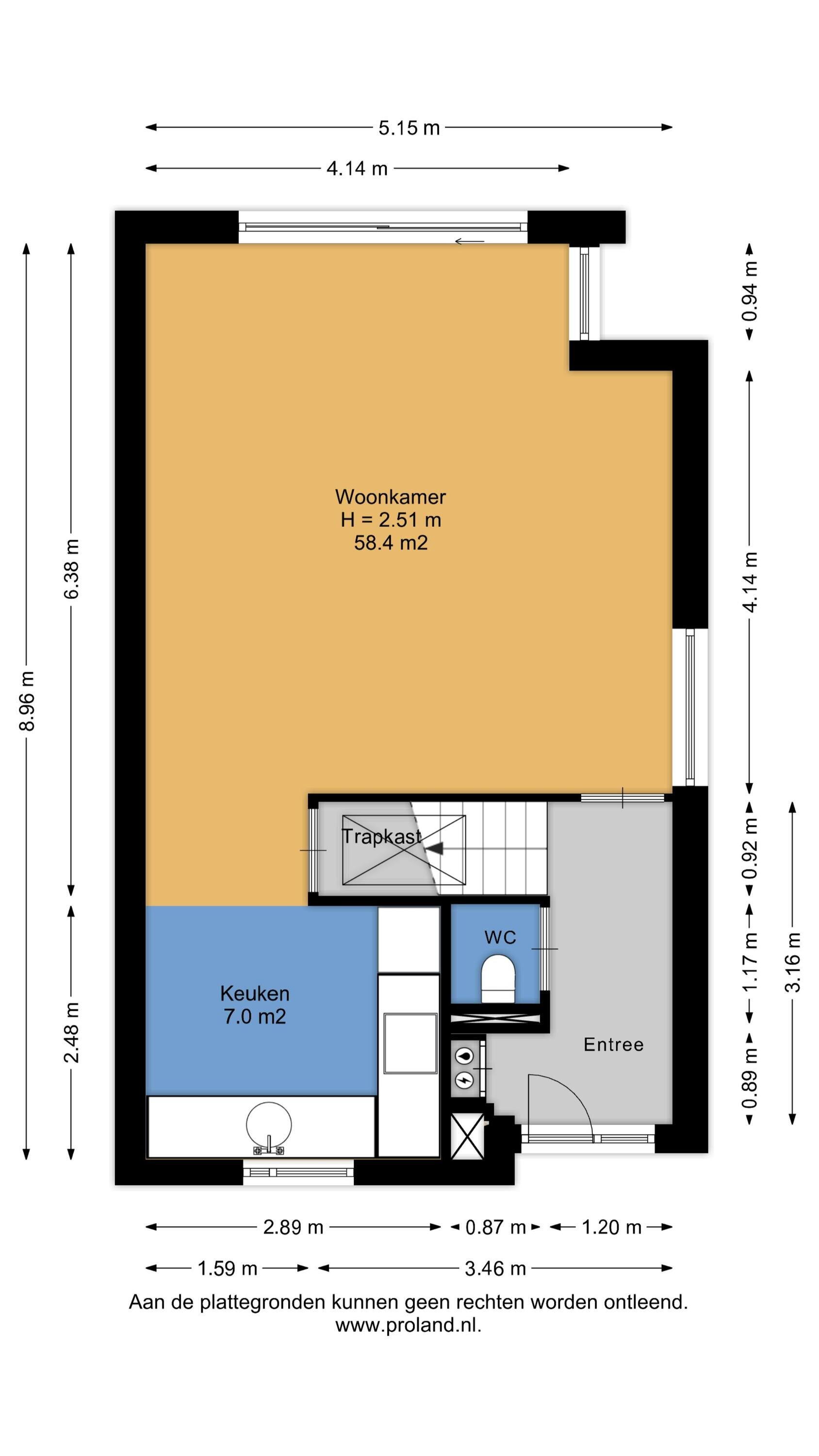
De woning heeft een verrassend ruime indeling, verdeeld over drie volwaardige woonlagen. De woonkamer aan de achterzijde strekt zich uit over de volle breedte van de woning, met grote ramen en schuifpui naar de tuin. Hierdoor geniet je van veel daglicht en een naadloze overgang tussen binnen en buiten. De moderne keuken uit 2021 aan de voorzijde is voorzien van complete inbouwapparatuur, waaronder een nieuwe vaatwasser (2025). Of je nu houdt van uitgebreid koken of gewoon snel iets wilt bereiden: hier heb je de ruimte én het gemak.

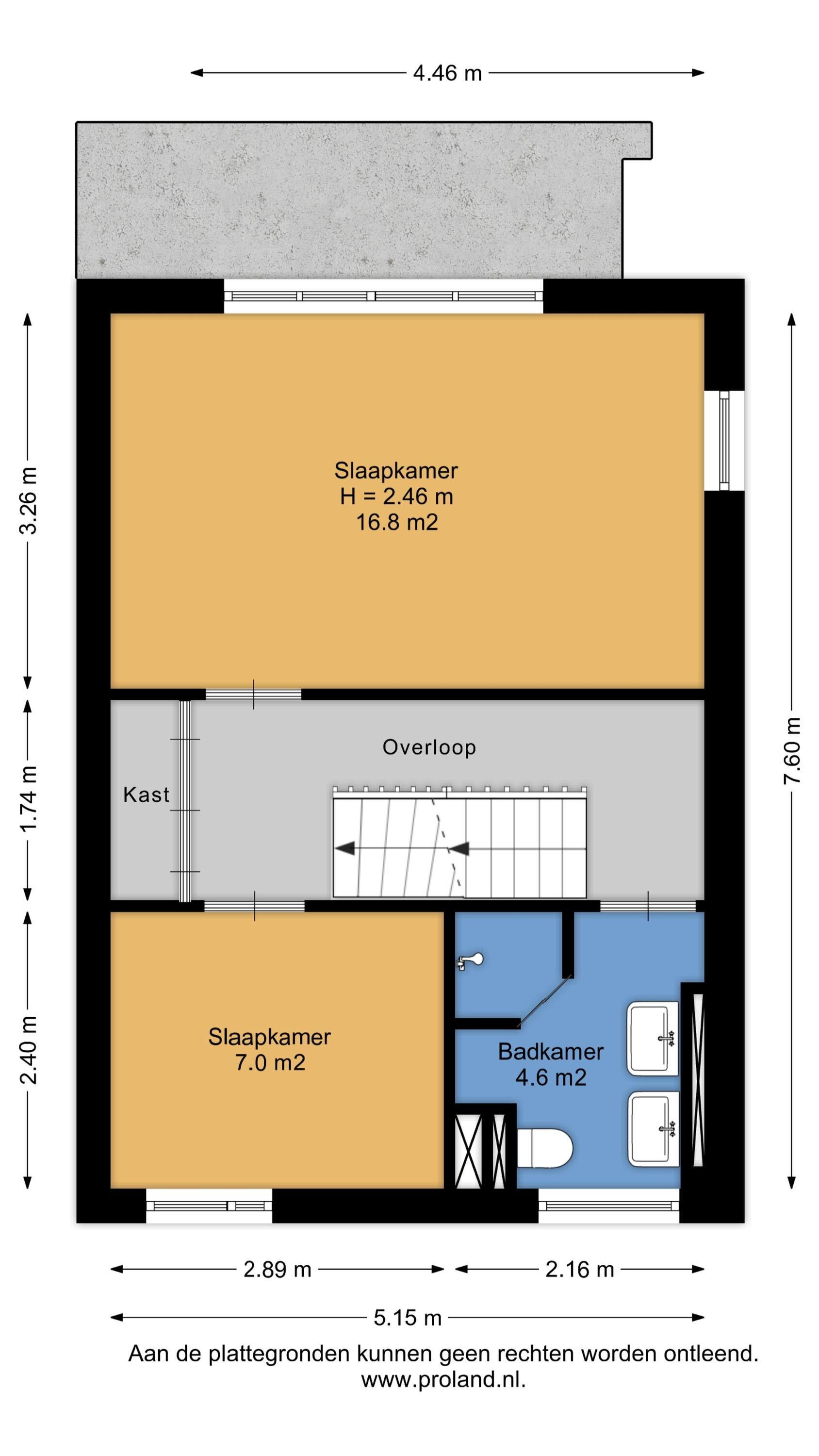
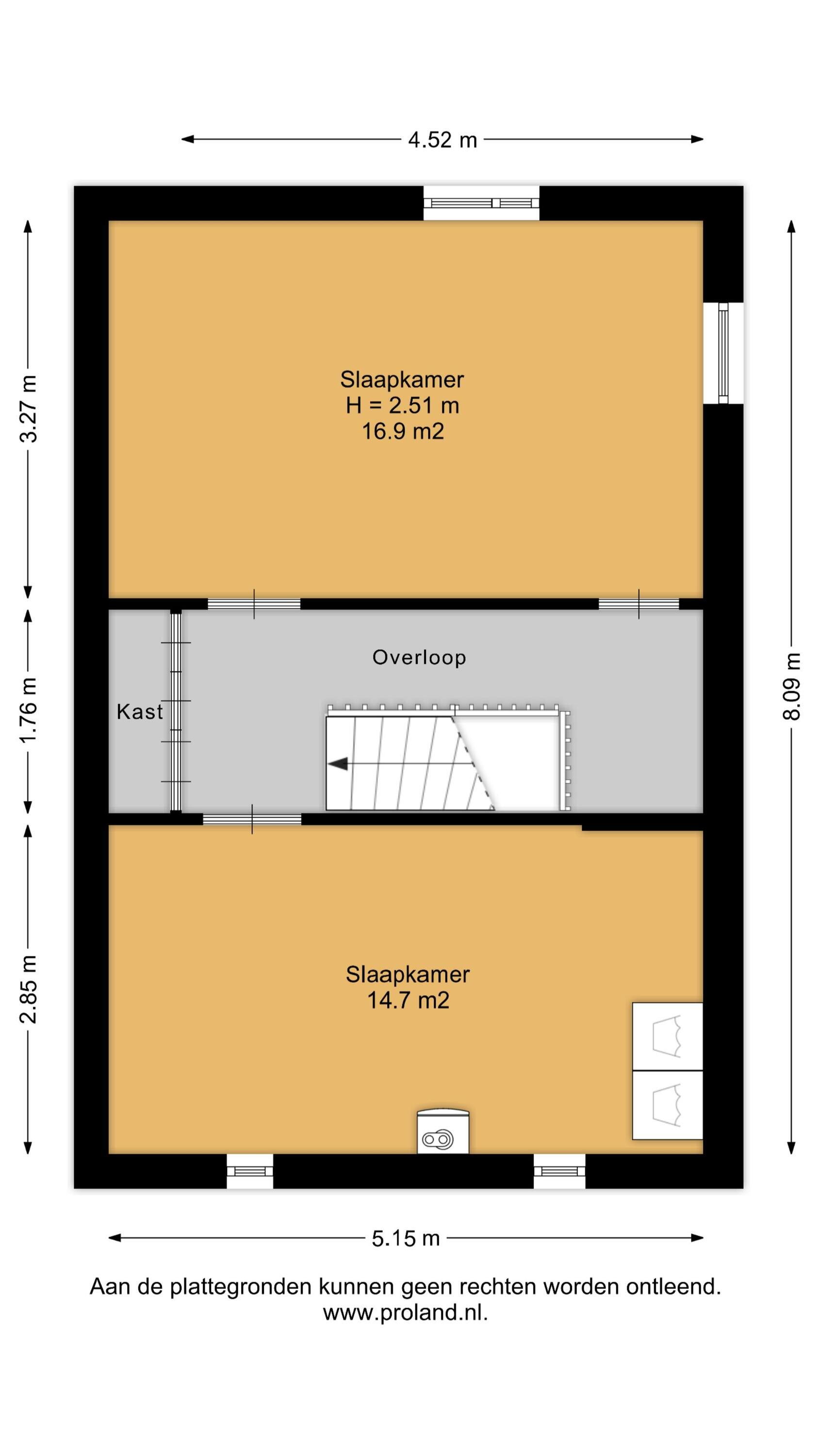
Op de eerste verdieping bevinden zich twee royale slaapkamers en een nette badkamer met inloopdouche, wastafelmeubel en tweede toilet. De tweede verdieping is volledig afgewerkt en biedt nog twee extra (slaap)kamers. Dankzij de uitstekende isolatie (dak, gevels en HR++ glas) is het binnen altijd comfortabel en energiezuinig.

Duurzaam en toekomstbestendig
Deze woning is klaar voor de toekomst. In 2022 is een nieuwe Intergas HRE cv-installatie geplaatst, gecombineerd met een hybride CV-ketel en airconditioning op zolder. Op het dak liggen 13 zonnepanelen (ca. 8 jaar oud) die zorgen voor een lage energierekening en een kleine ecologische voetafdruk.

Belangrijkste kenmerken:
- Ruim perceel door hoekligging
- Parkeren op eigen terrein mogelijk
- Ruime overkapping met berging
- Eigen achterom
- Energielabel A (nieuw label oktober 2025)
- 13 zonnepanelen (Solar Edge)
- Hybride cv-installatie (Intergas, 2022)
- Airco op zolder
- Kunststof kozijnen met HR++ glas
- Overkapping (Roossink Houtbouw, 2023)

Buiten genieten
De tuin ligt gunstig op de zon en is onderhoudsvriendelijk aangelegd. Dankzij de overkapping (2023) geniet je hier het hele jaar door van het buitenleven – van zomerse barbecues tot gezellige avonden onder de veranda. De ruime berging biedt plek voor fietsen, gereedschap of hobby’s.

Parkeren is geen enkel probleem! Op eigen terrein (max 1 auto) of in de parkeerplaatsen naast en voor de woning.

De wijk Slangenbeek
Wonen in Slangenbeek betekent wonen in een moderne, groene en rustige wijk met alle voorzieningen binnen handbereik. Op korte afstand vind je winkelcentrum Slangenbeek met o.a. Albert Heijn, bakker, drogist en een gezondheidscentrum. Voor gezinnen zijn er meerdere basisscholen in de buurt, zoals OBS De Schakel, BSO De Bres en CBS De Bron, en voortgezet onderwijs zoals het Montessori College Twente. Ook de bereikbaarheid is uitstekend: binnen enkele minuten fiets je naar het station Hengelo Noord, de A1/A35 ligt op korte rijafstand, en bushaltes bevinden zich op loopafstand.

Samengevat
Een duurzame, ruime en goed onderhouden gezinswoning in een rustige, kindvriendelijke wijk met alle voorzieningen om de hoek. Instapklaar, energiezuinig en voorzien van moderne techniek – dit huis biedt het beste van comfortabel wonen in Hengelo.

Klinkt dit als jouw nieuwe thuis?
Plan snel een bezichtiging bij Kemps Makelaarshuis en ervaar het zelf!

Plattegronden

Overdracht

Vraagprijs
€ 445.000 k.k.
Status
Verkocht onder voorbehoud
Aanvaarding
In overleg

Bouw

Object type
Eengezinswoning, hoekwoning
Soort bouw
Bestaande bouw
Bouwjaar
1997
Soort dak
Plat dak bedekt met bitumineuze dakbedekking

Oppervlakte en inhoud

Woonoppervlakte
125 m²
Perceeloppervlakte
183 m²
Inhoud
432 m³
Externe bergruimte
22 m²

Indeling

Aantal kamers
5 kamers (4 slaapkamers)
Aantal badkamers
1 badkamer
Badkamervoorzieningen
Toilet, dubbele wastafel, inloopdouche
Aantal woonlagen
3 woonlagen
Voorzieningen
Mechanische ventilatie, schuifpui, glasvezel kabel

Energie

Energielabel
A
Energielabel registratie
28-10-2025
Isolatie
Dakisolatie, muurisolatie, vloerisolatie, dubbel glas, hr glas
Verwarming
Cv-ketel
Warm water
Cv-ketel, zonnecollectoren
Cv ketel
Intergas combiketel gas gestookt uit 2022 (eigendom)

Buitenruimte

Ligging
In woonwijk
Tuin
Achtertuin, voortuin
Afmetingen achtertuin
100 m² (10 meter diep en 10 meter breed)
ligging tuin
Gelegen op het oosten en bereikbaar via achterom

Bergruimte

Schuur / berging
Vrijstaande houten berging
Voorzieningen
Voorzien van elektra

Garage

Soort garage
Geen garage

Parkeergelegenheid

Soort parkeergelegenheid
Openbaar parkeren, op eigen terrein

Energieverbruik in Hengelo

Energielabel deze woning

Energielabel A

Publicatie energielabel: 28-10-2025

Stroomverbruik per jaar

2720 kWh

(Gemiddelde hoekwoning in Hengelo)

Gasverbruik per jaar

1260 m³

(Gemiddelde hoekwoning in Hengelo)

* Cijfers zijn afkomstig van het CBS en bedoeld als indicatie en kunnen verschillen voor deze woning

Indicatie hypotheeklasten

Eigen inleg:
Spaargeld / overwaarde

Rente:
Laagste 10-jaars rente

Laagste 10-jaars rente

2,78% - Centraal Beheer - NHG


3,04% - Centraal Beheer - 80%

Laagste 20-jaars rente

3,29% - Centraal Beheer - NHG


3,52% - Centraal Beheer - 80%

Laagste 30-jaars rente

3,41% - Centraal Beheer - NHG


3,7% - Argenta - 80%


Hypotheek:

Bruto maandlasten: € 0 p/m

Netto maandlasten: € 0 p/m

Hoe berekenen we dit?

Het rentepercentage is gebaseerd op de laagste 10 jaars vaste rente voor één hypotheekdeel. De vermelde rente (3.04% zonder NHG) is gecontroleerd op 20-05-2026. Deze berekening is gebaseerd op een annuïteitenhypotheek die volledig wordt afgelost, waarbij de maandlasten gedurende de gehele looptijd gelijk blijven. De werkelijke rente en netto maandlasten kunnen variëren, afhankelijk van uw persoonlijke situatie en de hypotheekverstrekker. Raadpleeg een financieel adviseur voor een nauwkeurige berekening en advies. Aan deze berekening kunnen geen rechten worden ontleend; het dient enkel als indicatie.

Documentatie

Zonnegrenzen bekijken

Op de kaart

Inwoners in Hengelo

Cijfers voor postcodegebied 7559

Totaal aantal inwoners
10735 inwoners
Mannen
50%
Vrouwen
50%

Inwoners in Hengelo

Cijfers voor postcodegebied 7559

tot 15 jaar
18%
15 tot 25 jaar
16%
25 tot 35 jaar
20%
45 tot 65 jaar
34%
65 en ouder
12%

Huishoudens in Hengelo

Cijfers voor postcodegebied 7559

Eenpersoons zonder kinderen
19%
Meerpersoons zonder kinderen
29%
Huishoudens zonder kinderen
48%

Huishoudens in Hengelo

Cijfers voor postcodegebied 7559

Huishoudens met één kind
7%
Huishoudens met meerdere kinderen
45%
Huishoudens met kinderen
52%

Woningen in Hengelo

Cijfers voor postcodegebied 7559

Woningen voor 1945
1%
Woningen tussen 1945 en 1965
1%
Woningen tussen 1965 en 1975
1%
Woningen tussen 1975 en 1985
1%
Woningen tussen 1985 en 1995
25%

Woningen in Hengelo

Cijfers voor postcodegebied 7559

Woningen tussen 1995 en 2005
50%
Woningen tussen 2005 en 2015
16%
Woningen na 2015
7%
Huurwoningen
20%
Koopwoningen
80%

Overige in Hengelo

Cijfers voor postcodegebied 7559

Gemiddelde WOZ waarde
€ 307.000,-
Personen onder de 65 met uitkering
5%

Overige in Hengelo

Cijfers voor postcodegebied 7559

Adressen per km²
908
Stedelijkheid (schaal 1 op 5)
40%
Postcode kaart 7559 Gemeente kaart hengelo (o)

Korte feiten over Hengelo

Hengelo is een plaats en gemeente in de landstreek Twente en de provincie Overijssel. De gemeente telt 82.384 inwoners.

De stad Hengelo omvat het grootste gedeelte van de gemeente. In het zuidelijke deel van de gemeente ligt het kerkdorp Beckum. Daarnaast vallen de buurtschappen Woolde (grotendeels) en Oele onder de gemeente. De gemeente Hengelo werkt samen in de Regio Twente. Hengelo is na Enschede, Zwolle en Deventer de vierde stad van Overijssel.

Indien u vragen heeft of u wilt een bezichtiging inplannen, dan kunt u gebruik maken van het formulier hiernaast. Er zal daarna op korte termijn contact met u worden opgenomen.

Kemps Makelaarshuis de makelaar van nu!

De moderne, no-nonsense makelaar van Twente. Waar persoonlijke aandacht centraal staat in onze dagelijkse dienstverlening. Het aan- en/of verkopen van een woning is een spannende gebeurtenis. Dan is het fijn wanneer er een vriend “Homi makelaar” naast je staat die zich hard maakt voor jouw persoonlijk belangen! Dagelijks zijn wij succesvol actief op de Twentse woningmarkt. Je kunt ons o.a. vinden in de plaatsen Enschede, Hengelo & Haaksbergen.

Ieder persoon en elke woning is uniek, daarom hanteren wij altijd een op maat gemaakt plan dat perfect aansluit op jouw woonwensen. Door middel van innovatie en geavanceerde technologie streven wij naar een stressvrije en plezierige ervaring voor onze klanten. Door middel van onze op data gebaseerde strategie bereiken we een uitgebreider publiek dan anderen, en dit gebeurt altijd met een persoonlijke en doelgerichte aanpak, zowel online als offline. Als je vragen hebt over de vastgoedmarkt of wil je meer weten over jouw woning, staan wij altijd klaar om je te helpen.

Kemps Makelaarshuis de makelaar van nu!
Reviews Kemps Makelaarshuis

Emsdettenplein 2, Hengelo

€ 445.000 k.k. - Verkocht onder voorbehoud